- Año Construcción:
- 1971
- Habitaciones
- 2
- Tamaño de la propiedad
- 153 m2
- Baños
- 1
Descripción
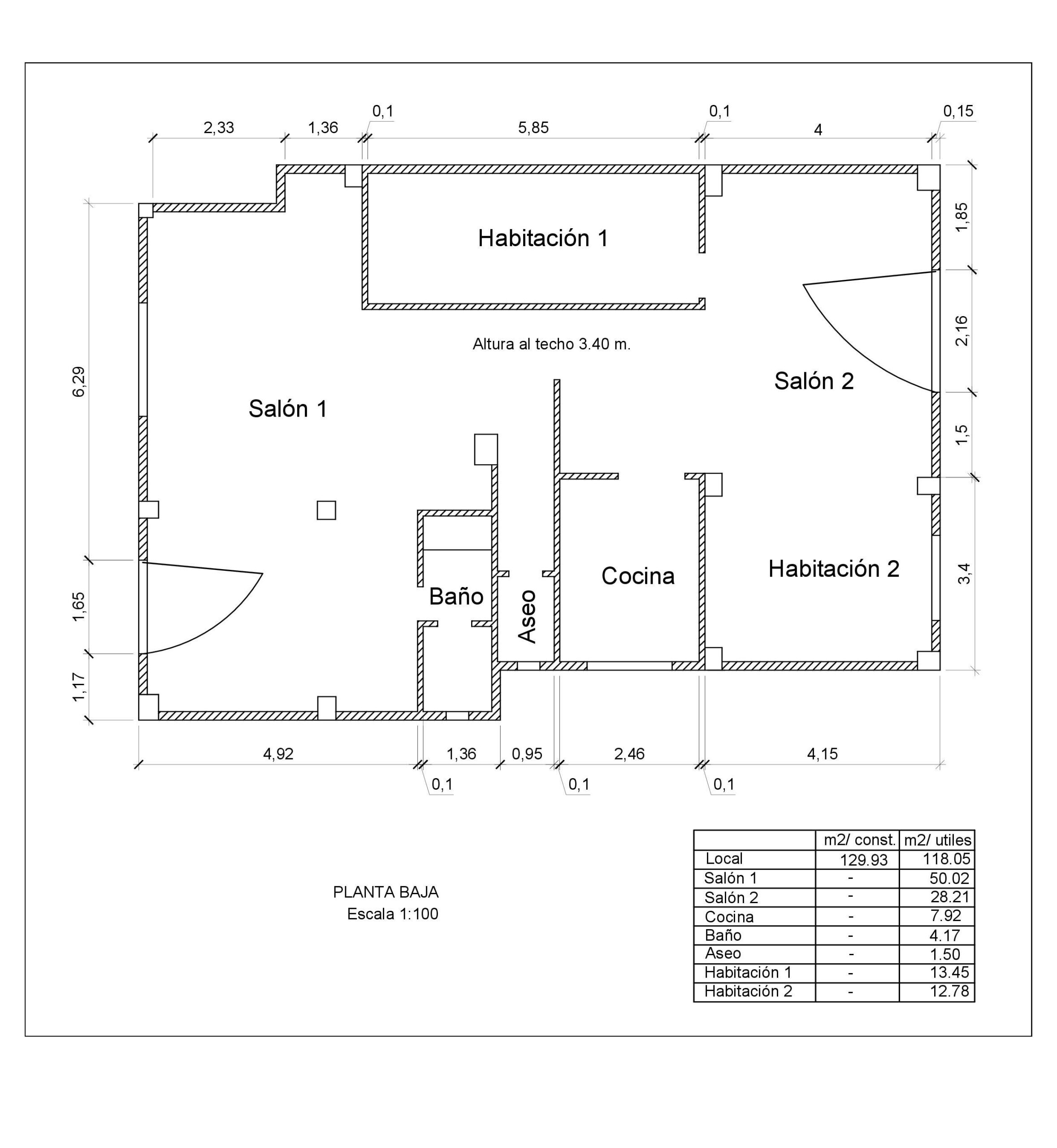
Se ofrece a la venta interesante conjunto formado por dos locales unidos, situados en la planta baja de un edificio residencial en Avenida de la Feria nº14, en el consolidado barrio de La Feria, una zona muy bien comunicada de Las Palmas de Gran Canaria.
Los locales se encuentran haciendo esquina, lo que les proporciona gran visibilidad, luminosidad y ventilación, al ser totalmente exteriores. Disponen además de accesos independientes por ambos lados, directamente desde las aceras que conectan con el portal del edificio, lo que facilita diferentes configuraciones de uso y distribución.
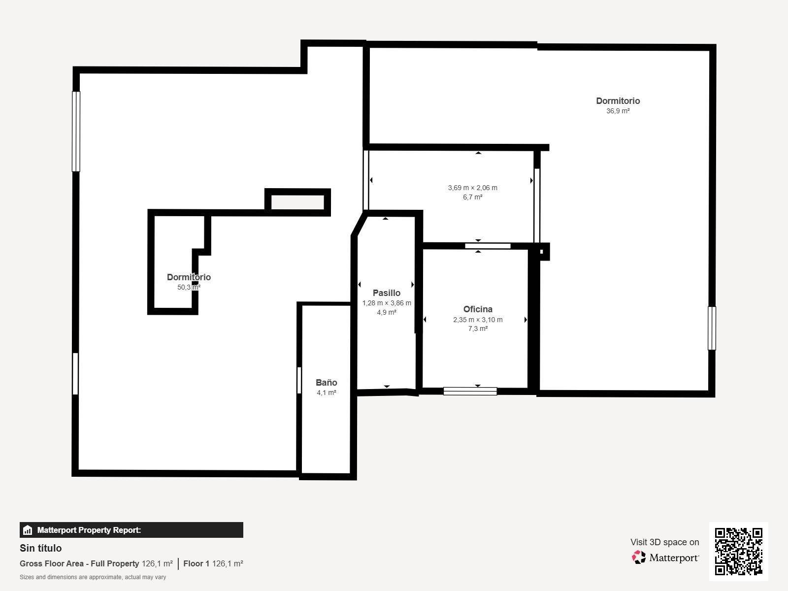
Actualmente el espacio presenta una distribución diáfana con varias estancias, utilizándose de hecho como vivienda. La distribución existente cuenta con:
– Dos amplios salones
– Cocina
– Dos dormitorios
– Un baño completo
– Un aseo
El inmueble dispone de suministro eléctrico activo, agua potable y conexión a la red de saneamiento, lo que facilita cualquier proyecto de reforma o adecuación.
Gracias a su configuración y a sus dos accesos independientes, existe la posibilidad de reorganizar el espacio y dividirlo en dos unidades independientes, lo que abre la puerta a distintos proyectos: inversión, alquiler o uso combinado.
La propiedad requiere reforma, lo que permite al comprador adaptar completamente el espacio a sus necesidades, ya sea para mantener su uso como local, reconvertirlo interiormente o plantear un proyecto de vivienda.
Ubicación estratégica dentro de la ciudad, con rápido acceso a la circunvalación GC-3 y a la autopista GC-1, lo que permite desplazarse con facilidad hacia el centro de Las Palmas, la zona portuaria o el sur de la isla. En las inmediaciones se encuentran supermercados, farmacias, centros educativos, zonas deportivas, transporte público y todo tipo de servicios propios de un barrio plenamente consolidado.
Aclaración importante:
El inmueble se vende como cuerpo cierto. Cualquier gestión relativa a cambio de uso o regularización urbanística deberá ser tramitada por el comprador ante las administraciones correspondientes.
Una oportunidad interesante para inversores o particulares que busquen un espacio versátil con múltiples posibilidades en una zona urbana bien conectada de Las Palmas de Gran Canaria.
¡Contacta con Elite Real Estate ahora para más información y para concertar una visita y no dejes pasar esta oportunidad!
Nota: Gastos e impuestos no incluidos. Los datos son orientativos y pueden estar sujetos a errores u omisiones involuntarias.
Propiedades similares
Local comercial en San Fernando

Local comercial en San Fernando, Sector 4

Local comercial en Maspalomas-Meloneras


























