- Año Construcción:
- 1972
- Habitaciones
- 1
- Tamaño de la propiedad
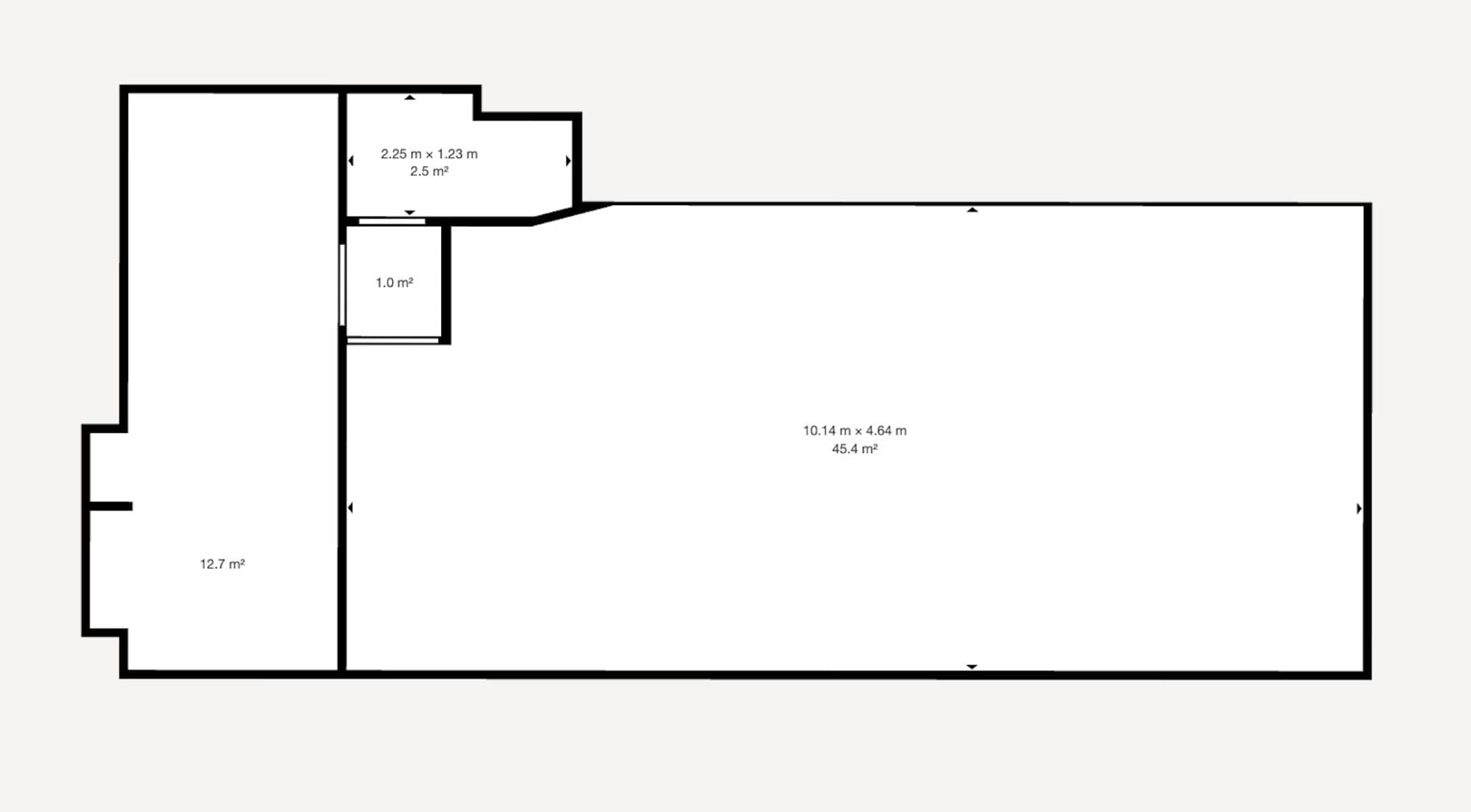
- 64 m2
- Baños
- 1
Descripción
Oportunidad única para inversores: local comercial de 64 m² en pleno corazón de la zona comercial de La Isleta, una ubicación estratégica y de alto tránsito, ideal para quienes buscan rentabilidad inmediata. El inmueble está actualmente arrendado, generando ingresos estables desde el primer día gracias a un inquilino consolidado.
Este local se encuentra en perfecto estado, sin necesidad de reformas, y cuenta con un escaparate atractivo, un almacén u oficina versátil y un baño completo, ofreciendo todas las comodidades para cualquier actividad comercial.
Sobre la Zona
La calle La Naval, ubicada en La Isleta, es un área con un rico pasado vinculado al Puerto de La Luz, motor económico histórico de Las Palmas de Gran Canaria. Esta zona está experimentando un resurgir comercial, recuperando su vitalidad y atractivo para comerciantes e inversores.
La llegada constante de cruceros al Puerto de La Luz asegura un importante tráfico de turistas que, junto a los residentes locales, genera un flujo continuo de clientes. Además, la calle está rodeada de cientos de negocios locales, creando un entorno dinámico y vibrante para cualquier actividad comercial.
Claves de la Inversión
•Inquilino consolidado: Ingresos asegurados desde el primer día.
•Ubicación estratégica: En una calle de alta demanda y tránsito constante.
•Alta rentabilidad: Ideal para inversores que buscan seguridad y beneficios a corto y largo plazo.
•Documentación en regla: Compra sin contratiempos.
Este local es una oportunidad excepcional en una de las zonas comerciales con mayor proyección de Las Palmas.
¡Contacta con Elite Real Estate ahora para más información y para concertar una visita y no dejes pasar esta inversión segura y rentable!
Nota: Gastos e impuestos no incluidos. Los datos son orientativos y pueden estar sujetos a errores u omisiones involuntarias.


























